您的位置: 首页 > 新房 > 益阳保利时光印象

益阳保利时光印象

新盘 小户型投资 低密居所

益阳保利时光印象

5099元/㎡ 备注:均价仅供参考!

报价时间:2026-04-19,价格有效期:28天 该价格为参考价格,实际价格以开发商为准!

楼盘地址 : 益阳市迎宾东路与蓉园路交汇处往南400米
开盘时间 :
交房时间 :
主力户型 : 3室2厅(109.00㎡) |3室2厅(129.00㎡)
开 发 商 : 保利发展控股
想了解价格优惠?致电售楼详询!(号码隐藏)

400-6123-572909

楼盘详情

占地面积: 13.3万方 建筑面积: 33.26万方 开发商: 保利发展控股
计划户数: 2700户 开盘时间: 交房时间:
产权年限: 70年 建筑类型: 高层 板楼 车位情况: 3357个
物业类型: 住宅 物业公司: 湖南保利物业 项目地址: 益阳市迎宾东路与蓉园路交汇处往南400米
物业费用: 暂无资料 售楼地址: 益阳市迎宾东路与蓉园路交汇处往南400米

益阳保利时光印象楼盘动态

更多动态

楼盘问答

    暂无数据
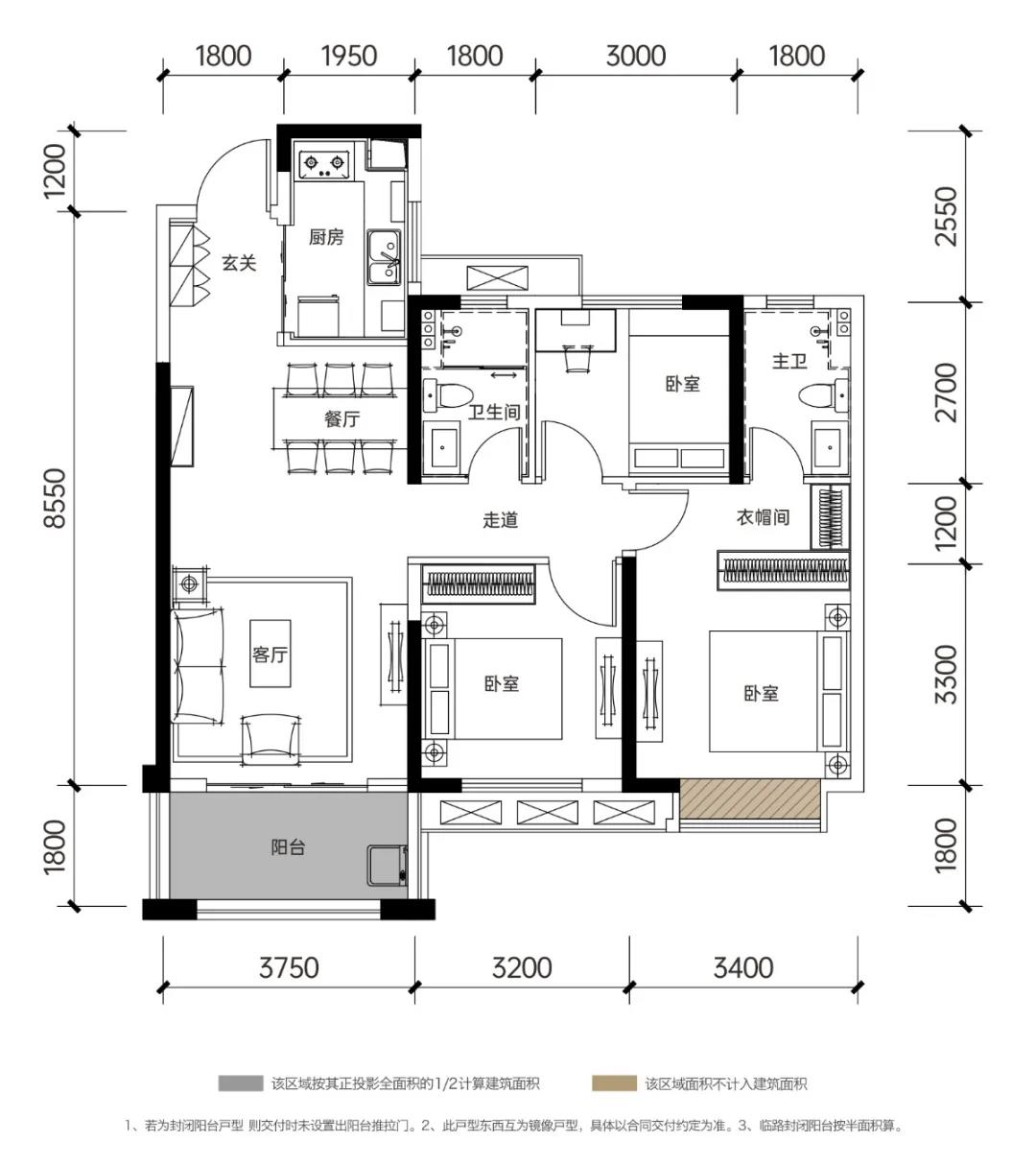
  • 益阳保利时光印象户型

    在售

    户型 3室2厅2卫0厨

    建筑面积109.00㎡

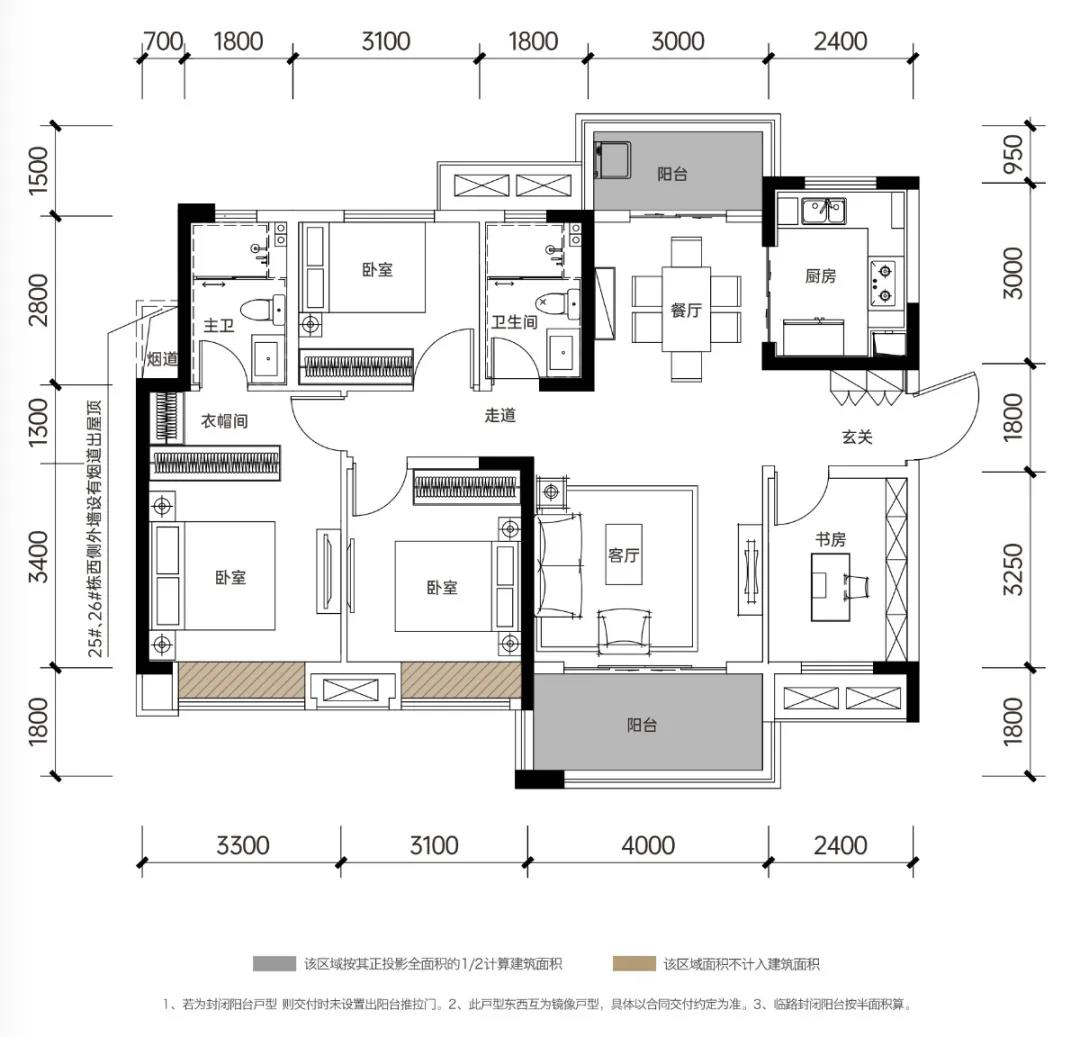
  • 益阳保利时光印象B户型

    在售

    B户型 3室2厅2卫0厨

    建筑面积129.00㎡