衡阳梧桐庄园
关注
6000元/㎡
备注:均价仅供参考!
报价时间:2026-04-18,价格有效期:28天 该价格为参考价格,实际价格以开发商为准!
楼盘地址 : 珠晖区衡州大道东48号(师院旁、酃湖公园畔)
开盘时间 : 2018年08月31日
交房时间 : 2023年05月30日四期55/56/57/58/60栋
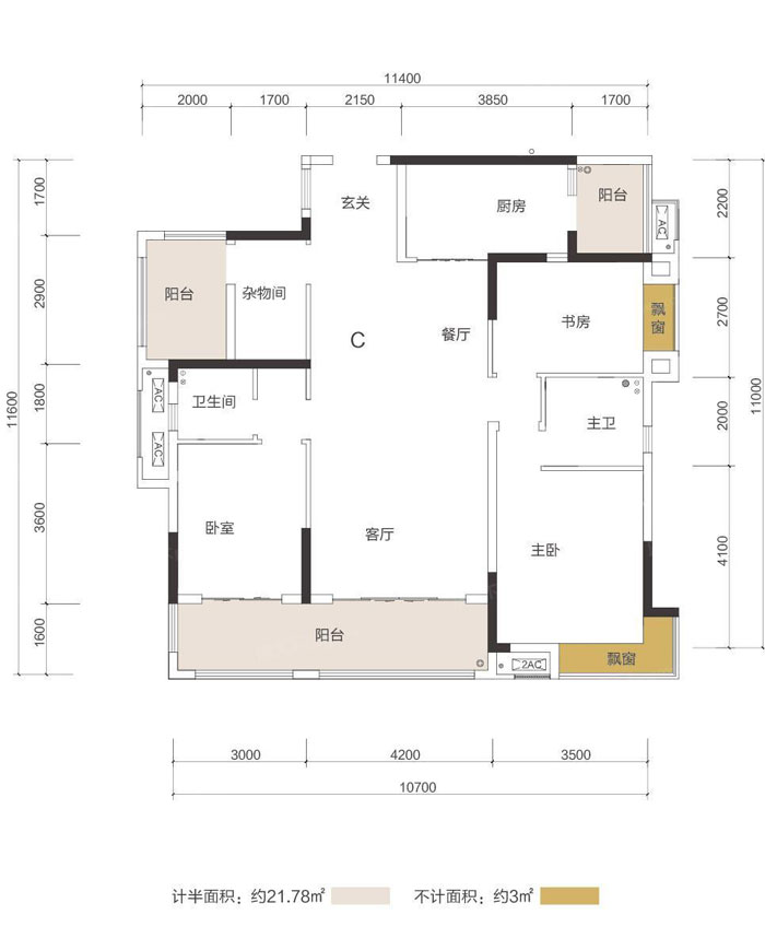
主力户型 :
2室2厅(118.00㎡)
|2室2厅(124.00㎡)
|3室2厅(133.00㎡)
|4室2厅(135.00㎡)
|4室2厅(143.00㎡)
开 发 商 : 湖南中库投资有限公司、美的置业



