您的位置: 首页 > 新房 > 桂阳德泰宝领嘉园

桂阳德泰宝领嘉园

在售 低密居所 宜居生态

桂阳德泰宝领嘉园

5100元/㎡ 备注:均价仅供参考!

报价时间:2026-04-18,价格有效期:28天 该价格为参考价格,实际价格以开发商为准!

楼盘地址 : 桂阳县蒙泉路赵子龙酒厂对面
开盘时间 : 2019年10月28日
交房时间 : 2021年12月30日
主力户型 : 1室2厅(49.00㎡) |2室2厅(102.00㎡) |3室2厅(137.00㎡) |3室2厅(122.00㎡) |3室2厅(115.00㎡)
开 发 商 : 湖南宏坤房地产开发有限公司
想了解价格优惠?致电售楼详询!(号码隐藏)

400-6123-572042

楼盘详情

占地面积: 26141平米 建筑面积: 100000平米 开发商: 湖南宏坤房地产开发有限公司
计划户数: 752户 开盘时间: 2019年10月28日 交房时间: 2021年12月30日
产权年限: 住宅70年,商业40年 建筑类型: 小高层,高层 车位情况: 700个(地上:167 个 地下:493个)
物业类型: 住宅 物业公司: 湖南德泰晟元环境管理有限公司 项目地址: 桂阳县蒙泉路赵子龙酒厂对面
物业费用: 1.5元/m²/月 售楼地址: 桂阳县蒙泉路赵子龙酒厂对面

桂阳德泰宝领嘉园楼盘动态

更多动态
    暂无数据

楼盘问答

    暂无数据
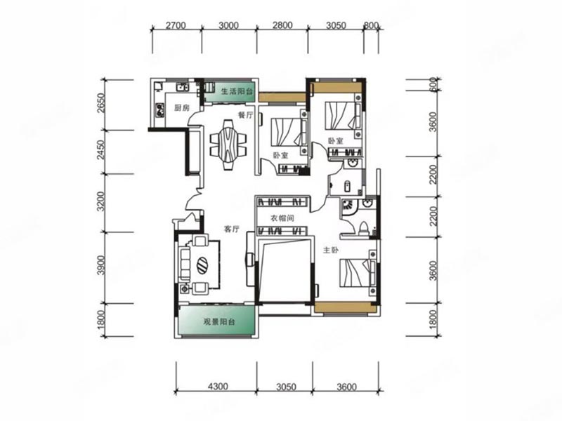
  • 桂阳德泰宝领嘉园1栋06户型

    在售

    1栋06户型 3室2厅2卫1厨

    建筑面积137.00㎡

  • 桂阳德泰宝领嘉园6栋02户型

    在售

    6栋02户型 1室2厅1卫1厨

    建筑面积49.00㎡

  • 桂阳德泰宝领嘉园7栋01户型

    在售

    7栋01户型 3室2厅2卫1厨

    建筑面积122.00㎡

  • 桂阳德泰宝领嘉园7栋03户型

    在售

    7栋03户型 2室2厅2卫1厨

    建筑面积102.00㎡

  • 桂阳德泰宝领嘉园8栋01户型

    在售

    8栋01户型 4室2厅2卫1厨

    建筑面积125.00㎡

  • 桂阳德泰宝领嘉园8栋05户型

    在售

    8栋05户型 4室2厅2卫1厨

    建筑面积138.00㎡

  • 桂阳德泰宝领嘉园8栋06户型

    在售

    8栋06户型 3室2厅2卫1厨

    建筑面积115.00㎡

  • 桂阳德泰宝领嘉园8栋08户型

    在售

    8栋08户型 4室2厅2卫1厨

    建筑面积138.00㎡

为您推荐