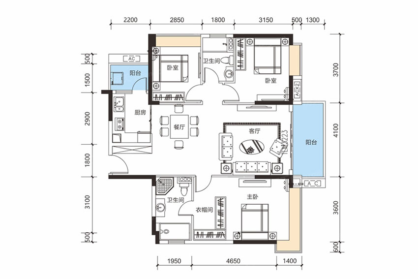
衡阳珠江愉景豪庭3室2厅2卫K户型(东边户)图鉴赏-看好房

衡阳珠江愉景豪庭

在售

  • 低密居所
  • 宜居生态