首页
新房
资讯
地图找房
衡阳光辉一品3室2厅2卫2#B户型图鉴赏-看好房
您的位置:
首页
>
新房
>
衡阳光辉一品
>
户型详细
衡阳光辉一品
在售
旅游地产
教育地产
楼盘主页
楼盘动态
在售户型
历史价格
楼盘相册
楼盘详情
周边配套
全部(
0
)
3室(
6
)
←
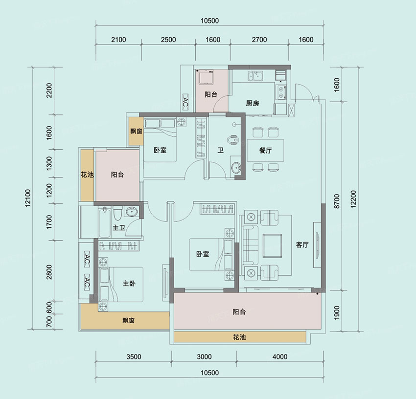
3室2厅2卫
129.80㎡
3室2厅2卫
123.84㎡
3室2厅2卫
141.85㎡
3室2厅2卫
113.09㎡
3室2厅2卫
136.23㎡
3室2厅2卫
142.07㎡
→
均价:
5600
元/㎡
居室:
3室2厅2卫1厨
面积:
123.84㎡
购房热线
400-6123-572
转
910